欢迎光临成都销售润滑、液压和气动专业设备公司!
一、概述
XYZ-G型稀油站适用于润滑介质运动粘度在40℃时为22~320cSt(相当ISO VG22~320)的稀油循环润滑系统中;例如:冶金、矿山、建材、能源、交通、轻工、化工等行业的机械设备的稀油润滑。
稀油站的供油压力为0.4MPa以下,供油温度40±3℃;过滤精度0.08~0.12mm;冷却水温≤30℃,冷却水压力0.2~0.3MPa;换热器进油温度为50℃左右;温降≤8℃;使用蒸汽加热油时蒸汽的压力为0.2~0.4MPa。
二、工作原理
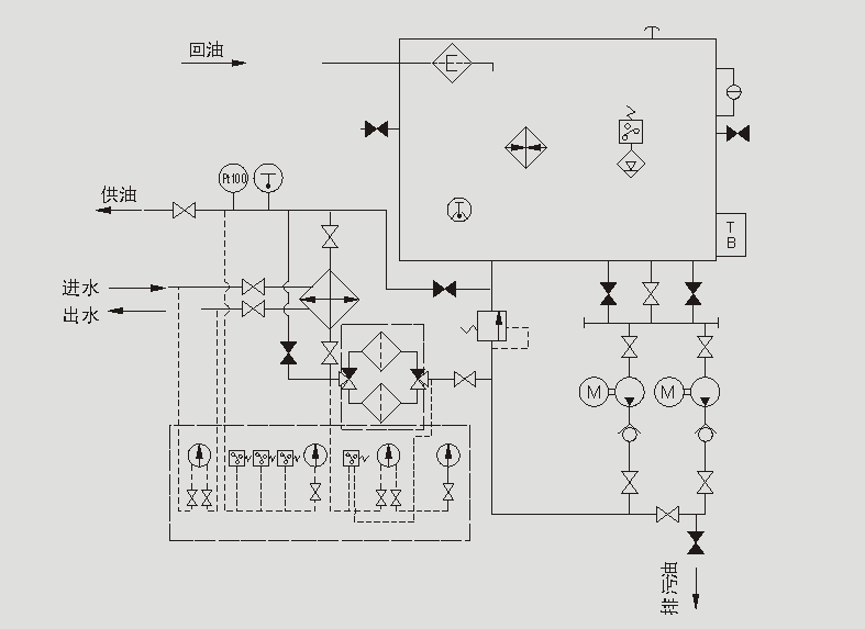
工作时,油液由齿轮泵从油箱吸出,经单向阀、双筒网式油滤器、列管式油冷却器,被直接送到润滑点;油站的最高供油压力为0.4MPa,根据润滑点的要求,通过调节安全阀确定使用压力,当油泵的压力超过安全阀的调定压力时,安全阀将自动打开,部分油液流回油箱;正常工作时,油泵一台工作、一台备用;由于某种原因系统压力下降,当降到调定值时,压力控制器控制,备用泵自动开启,与工作泵一起工作,直到压力正常时,备用泵自动停止;若油压继续下降到另一调定值时,则通过另一压力控制器,发出事故警报,停主机。
双筒网片式油滤器的一组过滤芯工作,一组过滤芯备用,在进出口处装有差压发讯器,当压差超过0.15MPa,人工切换到备用滤芯工作,取出原工作滤芯,清洗或更换滤片。
油箱装有电接点温度计,根据供油温度要求,调定最高和最低两个界限。在低温时,信号灯亮,人工开启加热器进行加热;当油温升至高点时,自动切断加热器,停止加热;且控制油温过低时,油泵不能启动;供油口装有铂热电阻,当供油口温度高时,报警并开冷却器;冷却器设有旁路直通管道,当不用冷却器或它需检修时,可关闭进出油口阀门,同时打开旁路阀门,让油经由直通管道输出或卸下冷却器进行维修,而不影响稀油站工作。
≤125L/min稀油站采用电加热,全部部件都装在油箱上,为整体式结构。
≥250L/min稀油站原采用蒸汽加热,用户欲改用电加热时,订货时请说明;其主要部件均装于基础上,为分体式结构。
三、原结构特点
1、有备用油泵,可保证向润滑点连续供油;
2、过滤器放在冷却器之前,可提高过滤通过能力,粘度较高的润滑介质也可适应;
3、采用双筒过滤器,可不停车切换到备用滤芯工作,取出原工作滤芯进行清洗或更换;
4、采用列管式油冷却器,冷却效果好,阻力小,便于维修;
5、回油设磁过滤,可吸附清除油泵中的铁屑微粒,保证油的清洁度。
6、配有仪表盘和电控箱,观察运行参数方便,并可实现自动控制和事故报警。
四、技术参数
五、外形结构及尺寸
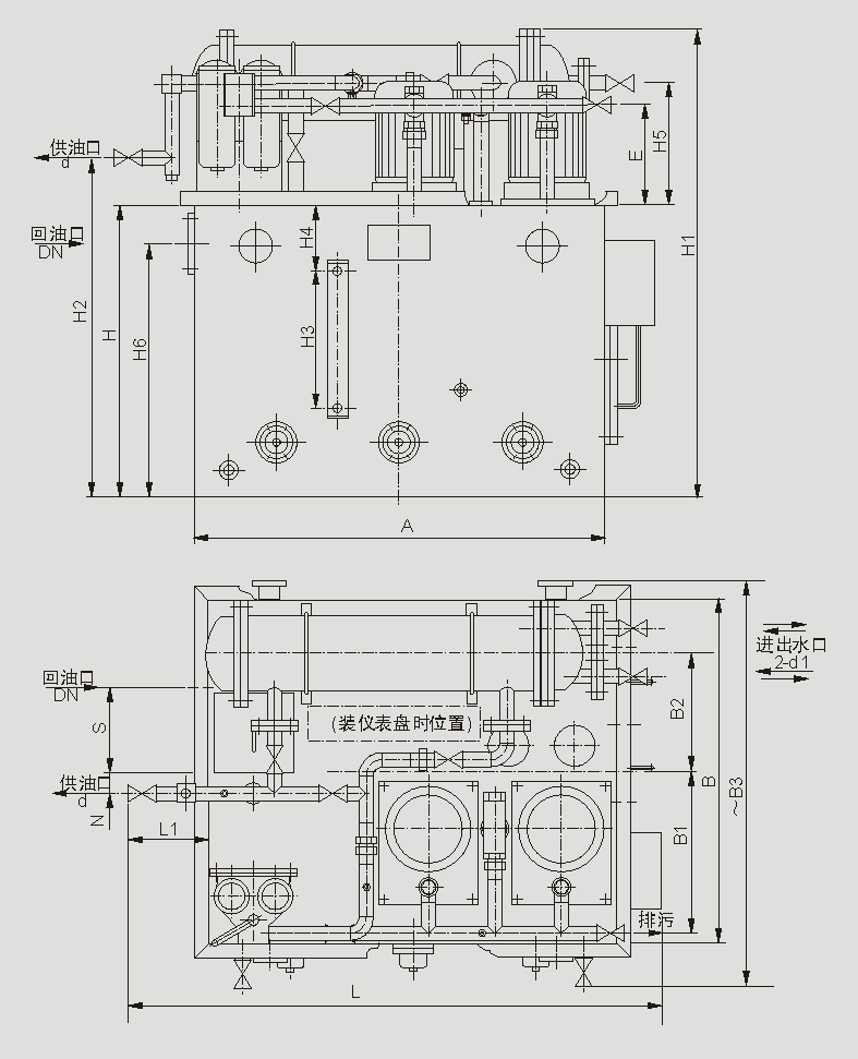
XYZ-6G~125G型稀油站外形图
XYZ-6~125G型稀油站外形尺寸
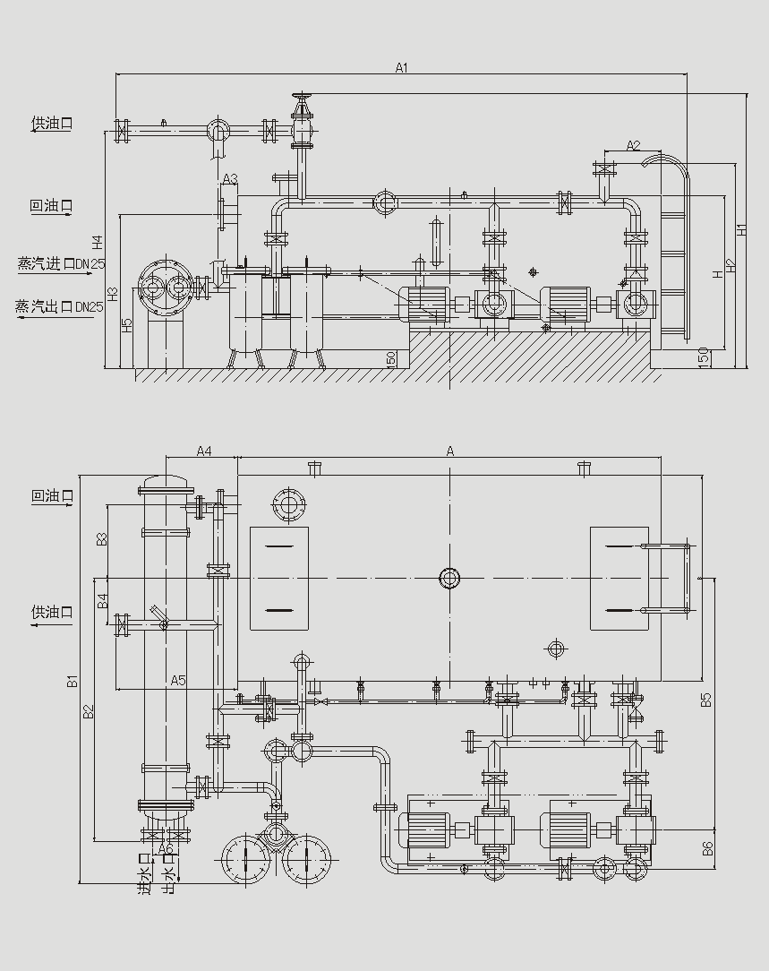
XYZ-250G~1000G型稀油站外形图
XYZ-250G~1000G型稀油站外形及安装尺寸
六、XYZ-250G~1000G型稀油站地基尺寸(注:XYZ-6G~125G型稀油站为整体式结构,就地放置即可)

XYZ-250G~1000G型稀油站地基图
XYZ-250G~1000G型稀油站地基尺寸表
七、原理图
XYZ-6G~125G型稀油站原理图
XYZ-250G~1000G型稀油站原理图
八、电控柜
XYZ-6G~125G型
XYZ-250G~1000G型稀油站电控柜
九、仪表盘
XYZ-6~125G型稀油站
XYZ-250G~1000G型稀油站
十、型号标注方法及订货说明
1、标记示例:
订购公称流量125L/min的稀油站则标记为:
XYZ-125G型稀油站(JB/ZQ/T4147-91)
订购公称流量400L/min但不带冷却器的稀油站则作如下标记:
XYZ-400A型稀油站(JB/ZQ/T4147-91)
2、若稀油站采用板式冷却器,请在订货时注明,外形图及地基(≥250L/min)尺寸需作相应改变。
3、稀油站为成套供应,含电控柜及仪表盘,若不带电控柜或仪表盘,请在订货时说明。
4、稀油站电控柜通常为继电器控制,如要求PLC控制也请在订货时说明。
5、普通稀油站的电机、电加热器、检测仪表电器、控制柜等均不防爆,如有防爆等级要求,请在订货时说明。
6、稀油站使用的润滑油牌号和粘度、过滤精度尽量注明,其过滤精度超过标准范围或对滤芯材质有特殊要求的订货时也应说明。